Наша группа Вконтакте vk.com/4ertimcom

ГОСТ 10001-15000

ГОСТ 12004-81

E-mail автора: 

Сталь арматурная. Методы испытания на растяжение

Обозначение: ГОСТ 12004-81
Статус: действующий
Название рус.: Сталь арматурная. Методы испытания на растяжение
Название англ.: Reinforcing-bar steel . Tensile test methods
Дата актуализации текста: 19.06.2012
Дата актуализации описания: 19.06.2012
Дата введения в действие: 01.07.1983
Область и условия применения: Настоящий стандарт устанавливает методы испытаний на растяжение при температуре 20 (плюс 15 минус 10) град.С арматурной стали номинальным диаметром от 3,0 до 80 мм (проволоки, стержни и арматурные канаты) круглого и периодического профиля, предназначенной для армирования обычных и предварительно напряженных железобетонных конструкций для определения механических свойств: полного относительного удлинения при максимальной нагрузке; относительного удлинения после разрыва; относительного равномерного удлинения после разрыва; относительного сужения после разрыва; временного сопротивления; предела текучести (физического); пределов текучести и упругости (условных); модуля упругости (начального)
Взамен: ГОСТ 12004-66
Список изменений: №0 от 22.06.1988 (рег. 22.06.1988) «Срок действия продлен»
№1 от 01.01.1986 (рег. 20.06.1985) «Срок действия продлен»
№2 от 01.03.1990 (рег. 13.08.1990) «Срок действия продлен»


ГОСТ 12004-81
ГОСТ 12004-81
ГОСТ 12004-81
ГОСТ 12004-81
ГОСТ 12004-81
ГОСТ 12004-81
ГОСТ 12004-81
ГОСТ 12004-81
ГОСТ 12004-81
ГОСТ 12004-81
Автор: 
Домашняя страница автора: 

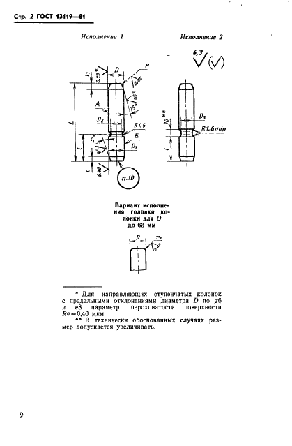
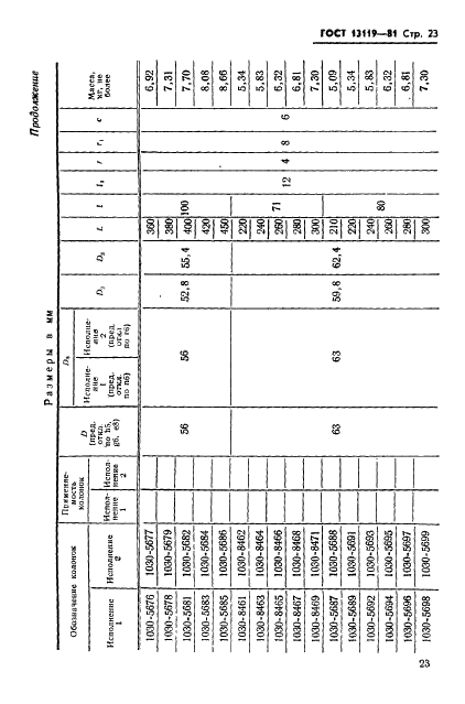
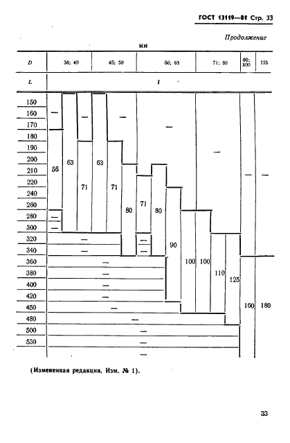
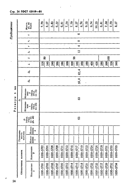
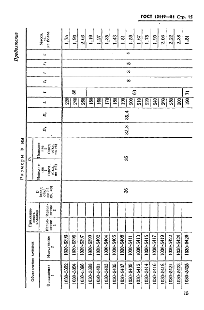
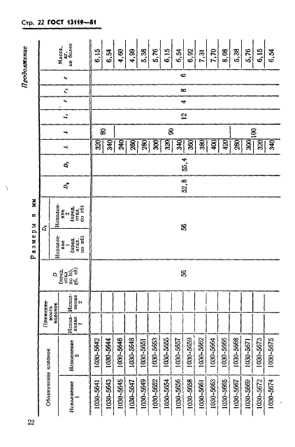
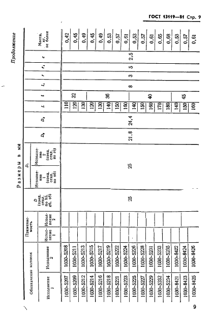
ГОСТ 13119-81

E-mail автора: 

Штампы для листовой штамповки. Колонки направляющие ступенчатые. Конструкция и размеры

Обозначение: ГОСТ 13119-81
Статус: действующий
Название рус.: Штампы для листовой штамповки. Колонки направляющие ступенчатые. Конструкция и размеры
Название англ.: Die posta with flute for cold plastic working dies. Construction and dimensions
Дата актуализации текста: 19.06.2012
Дата актуализации описания: 19.06.2012
Дата введения в действие: 01.01.1982
Область и условия применения: Настоящий стандарт распространяется на направляющие ступенчатые колонки, применяемые в направляющих узлах штампов и устанавливаемые по системе отверстия
Взамен: ГОСТ 13119-75
Список изменений: №1 от 01.01.1987 (рег. 26.03.1986) «Срок действия продлен»


ГОСТ 13119-81
ГОСТ 13119-81
ГОСТ 13119-81
ГОСТ 13119-81
ГОСТ 13119-81
ГОСТ 13119-81
ГОСТ 13119-81
ГОСТ 13119-81
ГОСТ 13119-81
ГОСТ 13119-81
ГОСТ 13119-81
ГОСТ 13119-81
ГОСТ 13119-81
ГОСТ 13119-81
ГОСТ 13119-81
ГОСТ 13119-81
ГОСТ 13119-81
ГОСТ 13119-81
ГОСТ 13119-81
ГОСТ 13119-81
ГОСТ 13119-81
ГОСТ 13119-81
ГОСТ 13119-81
ГОСТ 13119-81
ГОСТ 13119-81
ГОСТ 13119-81
ГОСТ 13119-81
ГОСТ 13119-81
ГОСТ 13119-81
ГОСТ 13119-81
ГОСТ 13119-81
ГОСТ 13119-81
ГОСТ 13119-81
ГОСТ 13119-81
ГОСТ 13119-81
Автор: 
Домашняя страница автора: 

ГОСТ 10493-81

E-mail автора: 

Линзы уплотнительные жесткие и компенсирующие на Ру 20-100 МПа (200-1000 кгс/см кв). Технические условия

Обозначение: ГОСТ 10493-81
Статус: действующий
Название рус.: Линзы уплотнительные жесткие и компенсирующие на Ру 20-100 МПа (200-1000 кгс/см кв). Технические условия
Название англ.: Rigin and compensating lens-shaped seals for pn20-100 mpa (200-1000 kgf/cm2). Technical specifications
Дата актуализации текста: 19.06.2012
Дата актуализации описания: 19.06.2012
Дата введения в действие: 01.01.1982
Область и условия применения: Настоящий стандарт распространяется на жесткие и компенсирующие линзы, применяемые в химической и нефтехимической промышленности для фланцевых соединений арматуры, соединительных частей и трубопроводов на условное давление Ру 20-100 МПа (200 - 1000 кгс/см кв) и условный проход Dу от 6 мм до 200 мм с температурой среды от минус 50 град. С до плюс 510 град. С
Взамен: ГОСТ 10493-75
Список изменений: №1 от 01.01.1987 (рег. 28.04.1986) «Срок действия продлен»
№2 от 01.01.1992 (рег. 25.02.1991) «Срок действия продлен»


ГОСТ 10493-81
ГОСТ 10493-81
ГОСТ 10493-81
ГОСТ 10493-81
ГОСТ 10493-81
ГОСТ 10493-81
ГОСТ 10493-81
ГОСТ 10493-81
ГОСТ 10493-81
ГОСТ 10493-81
ГОСТ 10493-81
ГОСТ 10493-81
ГОСТ 10493-81
ГОСТ 10493-81
ГОСТ 10493-81
ГОСТ 10493-81
ГОСТ 10493-81
ГОСТ 10493-81
ГОСТ 10493-81
ГОСТ 10493-81
ГОСТ 10493-81
ГОСТ 10493-81
Автор: 
Домашняя страница автора: 

ГОСТ 13219.2-81

E-mail автора: 

Крышки торцовые глухие низкие диаметром от 110 до 400 мм корпусов подшипников качения. Конструкция и размеры

Обозначение: ГОСТ 13219.2-81
Статус: действующий
Название рус.: Крышки торцовые глухие низкие диаметром от 110 до 400 мм корпусов подшипников качения. Конструкция и размеры
Название англ.: Low vague end cups for diameters from 110 till 400 mm of pillow blocks. Construction and dimensions
Дата актуализации текста: 19.06.2012
Дата актуализации описания: 19.06.2012
Дата введения в действие: 01.07.1982
Область и условия применения: Настоящий стандарт распространяется на глухие низкие торцовые крышки, устанавливаемые в корпусах подшипников качения и предназначенные для герметизации подшипникового узла, осевой фиксации подшипника и восприятия осевых нагрузок
Взамен: ГОСТ 13219.2-67


ГОСТ 13219.2-81
ГОСТ 13219.2-81
ГОСТ 13219.2-81
ГОСТ 13219.2-81
Автор: 
Домашняя страница автора: 

ГОСТ 12420-81

E-mail автора: 

Семена многолетних цветочных культур. Посевные качества. Технические условия

Обозначение: ГОСТ 12420-81
Статус: действующий
Название рус.: Семена многолетних цветочных культур. Посевные качества. Технические условия
Название англ.: Seed of perennial flowers. Sowing characteristics. Specifications
Дата актуализации текста: 19.06.2012
Дата актуализации описания: 19.06.2012
Дата введения в действие: 01.07.1982
Область и условия применения: Настоящий стандарт распространяется на семена многолетних цветочных культур, предназначенных для посева
Взамен: ГОСТ 12420-66
Список изменений: №1 от 01.07.1987 (рег. 22.10.1986) «Срок действия продлен»


ГОСТ 12420-81
ГОСТ 12420-81
ГОСТ 12420-81
ГОСТ 12420-81
ГОСТ 12420-81
ГОСТ 12420-81
ГОСТ 12420-81
ГОСТ 12420-81
ГОСТ 12420-81
ГОСТ 12420-81
ГОСТ 12420-81
ГОСТ 12420-81
Автор: 
Домашняя страница автора: 

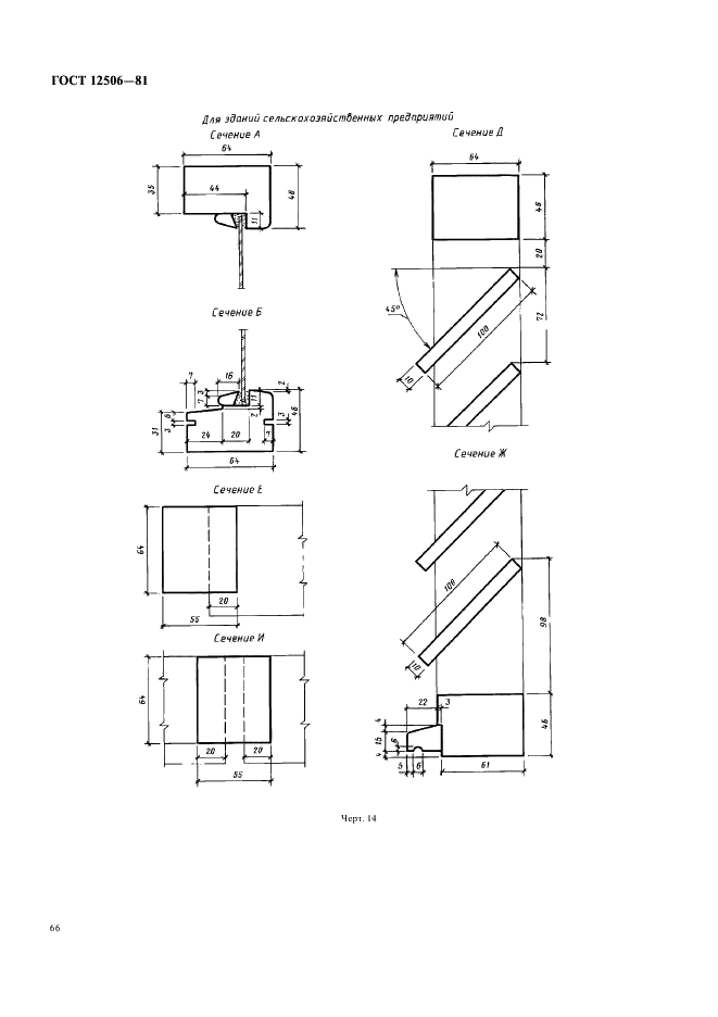
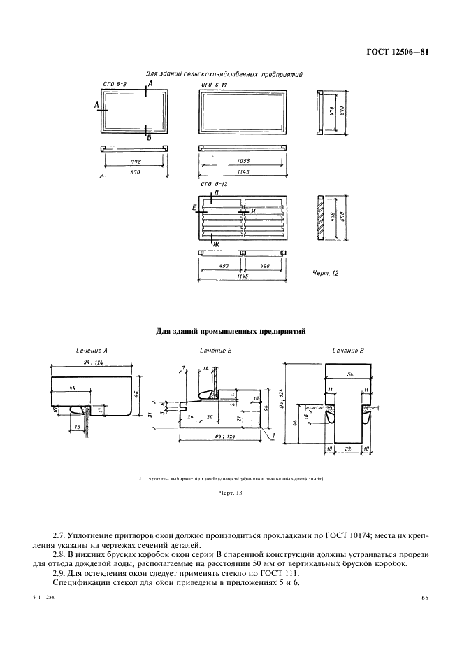
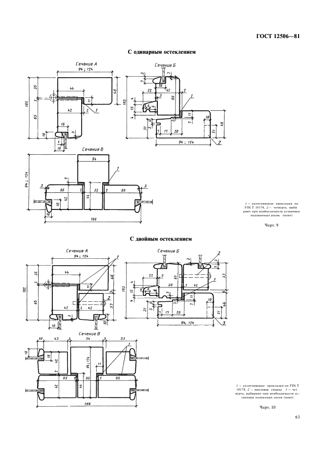
ГОСТ 12506-81

E-mail автора: 

Окна деревянные для производственных зданий. Типы, конструкция и размеры

Обозначение: ГОСТ 12506-81
Статус: действующий
Название рус.: Окна деревянные для производственных зданий. Типы, конструкция и размеры
Название англ.: Wooden windows for production buildings. Types, structure and dimensions
Дата актуализации текста: 19.06.2012
Дата актуализации описания: 19.06.2012
Дата введения в действие: 01.01.1984
Область и условия применения: Настоящий стандарт распространяется на деревянные окна, предназначенные для заполнения проемов в производственных и вспомогательных зданиях промышленных и сельскохозяйственных предприятий
Взамен: ГОСТ 12506-67 ГОСТ 16407-70


ГОСТ 12506-81
ГОСТ 12506-81
ГОСТ 12506-81
ГОСТ 12506-81
ГОСТ 12506-81
ГОСТ 12506-81
ГОСТ 12506-81
ГОСТ 12506-81
ГОСТ 12506-81
ГОСТ 12506-81
ГОСТ 12506-81
ГОСТ 12506-81
ГОСТ 12506-81
ГОСТ 12506-81
ГОСТ 12506-81
ГОСТ 12506-81
ГОСТ 12506-81
Автор: 
Домашняя страница автора: 

ГОСТ 11612.17-81

E-mail автора: 

Фотоумножители. Методы измерения спектральной анодной чувствительности

Обозначение: ГОСТ 11612.17-81
Статус: действующий
Название рус.: Фотоумножители. Методы измерения спектральной анодной чувствительности
Название англ.: Phetomultiplirs. Methods of measuring spectral anode sensitivity
Дата актуализации текста: 19.06.2012
Дата актуализации описания: 19.06.2012
Дата введения в действие: 01.01.1983
Область и условия применения: Настоящий стандарт распространяется на фотоэлектронные умножители (далее - ФУЭ) с числом каскадов умножения более одного и устанавливает два метода измерения спектральной анодной чувствительности ФУЭ на фиксированных длинах волн в диапазоне 380-1200 нм
Список изменений: №0 от 27.11.1989 (рег. 27.11.1989) «Изменено заглавие»
№1 от 01.01.1988 (рег. 29.06.1987) «Поправка»


ГОСТ 11612.17-81
ГОСТ 11612.17-81
ГОСТ 11612.17-81
ГОСТ 11612.17-81
ГОСТ 11612.17-81
ГОСТ 11612.17-81
ГОСТ 11612.17-81
ГОСТ 11612.17-81
ГОСТ 11612.17-81
ГОСТ 11612.17-81
ГОСТ 11612.17-81
Автор: 
Домашняя страница автора: 

ГОСТ 10285-81

E-mail автора: 

Вставки-заготовки для высадочного инструмента и пластины-заготовки для отрезных ножей из твердых спеченных сплавов. Технические условия

Обозначение: ГОСТ 10285-81
Статус: действующий
Название рус.: Вставки-заготовки для высадочного инструмента и пластины-заготовки для отрезных ножей из твердых спеченных сплавов. Технические условия
Название англ.: Insert blanks for upsetting tools and insert blanks for parting blades made of cemented carbides. Specifications
Дата актуализации текста: 19.06.2012
Дата актуализации описания: 19.06.2012
Дата введения в действие: 01.01.1983
Область и условия применения: Настоящий стандарт распространяется на вставки-заготовки для высадочного инструмента и пластины-заготовки для отрезных ножей из сплавов
Взамен: ГОСТ 10285-62
Список изменений: №1 от 01.01.1988 (рег. 26.06.1987) «Поправка»


ГОСТ 10285-81
ГОСТ 10285-81
ГОСТ 10285-81
ГОСТ 10285-81
ГОСТ 10285-81
ГОСТ 10285-81
ГОСТ 10285-81
Автор: 
Домашняя страница автора: 

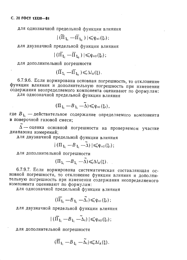
ГОСТ 13320-81

E-mail автора: 

Газоанализаторы промышленные автоматические. Общие технические условия

Обозначение: ГОСТ 13320-81
Статус: действующий
Название рус.: Газоанализаторы промышленные автоматические. Общие технические условия
Название англ.: Automatic instruments of contnuous action used for gas analysis. General requirements
Дата актуализации текста: 19.06.2012
Дата актуализации описания: 19.06.2012
Дата введения в действие: 01.01.1983
Область и условия применения: Настоящий стандарт распространяется на автоматические промышленные газоанализаторы, в том числе газоаналитические преобразователи и газоаналитические приборы Государственной системы промышленных приборов и средств автоматизации (ГСП), предназначенные для измерения содержания одного или нескольких компонентов в газовой смеси.
Стандарт не распространяется на: газоанализаторы, предназначенные для эксплуатации в условиях, отличных от условий, предусмотренных системой ГСП; средства измерений, предназначенные для получения информации в виде частичного или полного спектра анализируемой газовой смеси (оптические спектрометры, газовые хроматографы и др.);
средства измерений содержания влаги в газовых средах; газоаналитические установки и системы
Взамен: ГОСТ 13320-69 ГОСТ 20220-74
Список изменений: №1 от 01.07.1983 (рег. 31.01.1983) «Срок действия продлен»
№2 от 01.01.1988 (рег. 03.06.1987) «Срок действия продлен»
№3 от 01.07.1988 (рег. 23.06.1988) «Срок действия продлен»
№4 от 01.01.1990 (рег. 16.12.1988) «Срок действия продлен»


ГОСТ 13320-81
ГОСТ 13320-81
ГОСТ 13320-81
ГОСТ 13320-81
ГОСТ 13320-81
ГОСТ 13320-81
ГОСТ 13320-81
ГОСТ 13320-81
ГОСТ 13320-81
ГОСТ 13320-81
ГОСТ 13320-81
ГОСТ 13320-81
ГОСТ 13320-81
ГОСТ 13320-81
ГОСТ 13320-81
ГОСТ 13320-81
ГОСТ 13320-81
ГОСТ 13320-81
ГОСТ 13320-81
ГОСТ 13320-81
ГОСТ 13320-81
ГОСТ 13320-81
ГОСТ 13320-81
ГОСТ 13320-81
ГОСТ 13320-81
ГОСТ 13320-81
ГОСТ 13320-81
ГОСТ 13320-81
ГОСТ 13320-81
ГОСТ 13320-81
ГОСТ 13320-81
ГОСТ 13320-81
ГОСТ 13320-81
ГОСТ 13320-81
ГОСТ 13320-81
Автор: 
Домашняя страница автора: 

ГОСТ 10387-81

E-mail автора: 

Приборы для измерения цилиндрических мелкомодульных зубчатых колес. Типы и основные параметры. Нормы точности

Обозначение: ГОСТ 10387-81
Статус: действующий
Название рус.: Приборы для измерения цилиндрических мелкомодульных зубчатых колес. Типы и основные параметры. Нормы точности
Название англ.: Measuring machines for checking fine pitch spur gears. Types. Basic dimensions, standards of accuracy
Дата актуализации текста: 19.06.2012
Дата актуализации описания: 19.06.2012
Дата введения в действие: 01.01.1982
Область и условия применения: Настоящий стандарт распространяется на приборы для измерения цилиндрических мелкомодульных зубчатых колес с модулями от 0,2 мм
Взамен: ГОСТ 10387-73
Список изменений: №1 от 01.01.1986 (рег. 29.07.1985) «Срок действия продлен»
№2 от 01.02.1990 (рег. 14.07.1989) «Срок действия продлен»


ГОСТ 10387-81
ГОСТ 10387-81
ГОСТ 10387-81
ГОСТ 10387-81
ГОСТ 10387-81
ГОСТ 10387-81
ГОСТ 10387-81
ГОСТ 10387-81
ГОСТ 10387-81
ГОСТ 10387-81
ГОСТ 10387-81
ГОСТ 10387-81
ГОСТ 10387-81
ГОСТ 10387-81
ГОСТ 10387-81
ГОСТ 10387-81
ГОСТ 10387-81
ГОСТ 10387-81
ГОСТ 10387-81
ГОСТ 10387-81
ГОСТ 10387-81
Автор: 
Домашняя страница автора: 

Страницы