Наша группа Вконтакте vk.com/4ertimcom
ГОСТ 3.1103-82
E-mail автора:
Единая система технологической документации. Основные надписи
| Обозначение: | ГОСТ 3.1103-82 |
| Статус: | заменён |
| Название рус.: | Единая система технологической документации. Основные надписи |
| Название англ.: | Unified system for technological documentation. Basic inscriptions |
| Дата актуализации текста: | 19.06.2012 |
| Дата актуализации описания: | 19.06.2012 |
| Дата введения в действие: | 01.07.1983 |
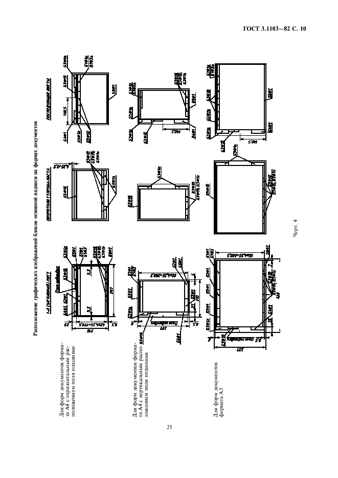
| Область и условия применения: | Настоящий стандарт устанавливает состав, формы, правила оформления и расположения информационных блоков основной надписи и поля подшивки в формах технологических документов |
| Взамен: | ГОСТ 3.1103-74 |
| Заменяющий: | ГОСТ 3.1103-2011 |
| Список изменений: | №1 от 01.07.1990 (рег. 31.10.1989) «Срок действия продлен» |












Автор:
Домашняя страница автора:
Чертежи бесплатно