Наша группа Вконтакте vk.com/4ertimcom
ГОСТ 30244-94
E-mail автора:
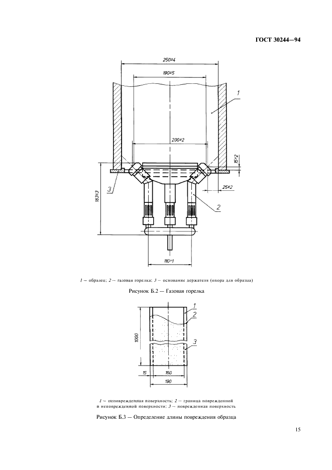
Материалы строительные. Методы испытаний на горючесть
| Обозначение: | ГОСТ 30244-94 | ||
| Статус: | действующий | ||
| Название рус.: | Материалы строительные. Методы испытаний на горючесть | ||
| Название англ.: | Building materials. Methods for combustibility test | ||
| Дата актуализации текста: | 19.06.2012 | ||
| Дата актуализации описания: | 19.06.2012 | ||
| Дата введения в действие: | 01.01.1996 | ||
| Область и условия применения: | Настоящий стандарт устанавливает методы испытаний строительных материалов на горючесть и классификацию их по группам горючести. Стандарт не распространяется на лаки, краски, а также другие строительные материалы в виде растворов, порошков и гранул |
||
| Взамен: | СТ СЭВ 382-76 СТ СЭВ 2437-80 | ||



















Автор:
Домашняя страница автора:
Чертежи бесплатно