Наша группа Вконтакте vk.com/4ertimcom
ГОСТ 26601-85
E-mail автора:
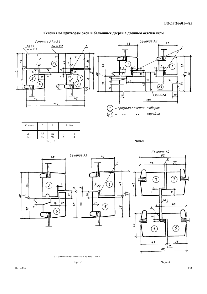
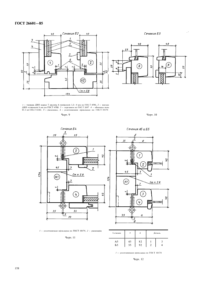
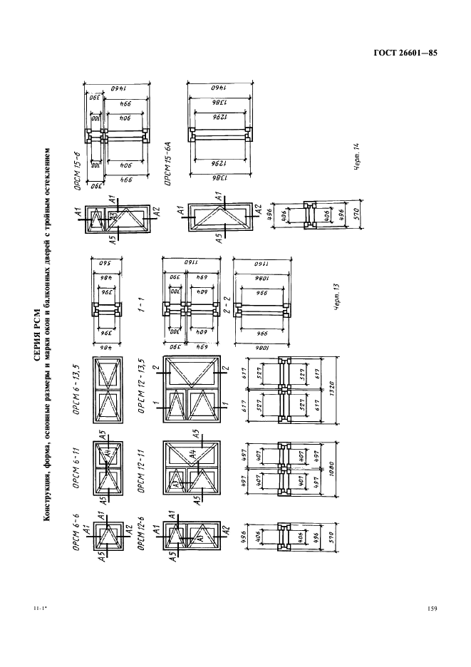
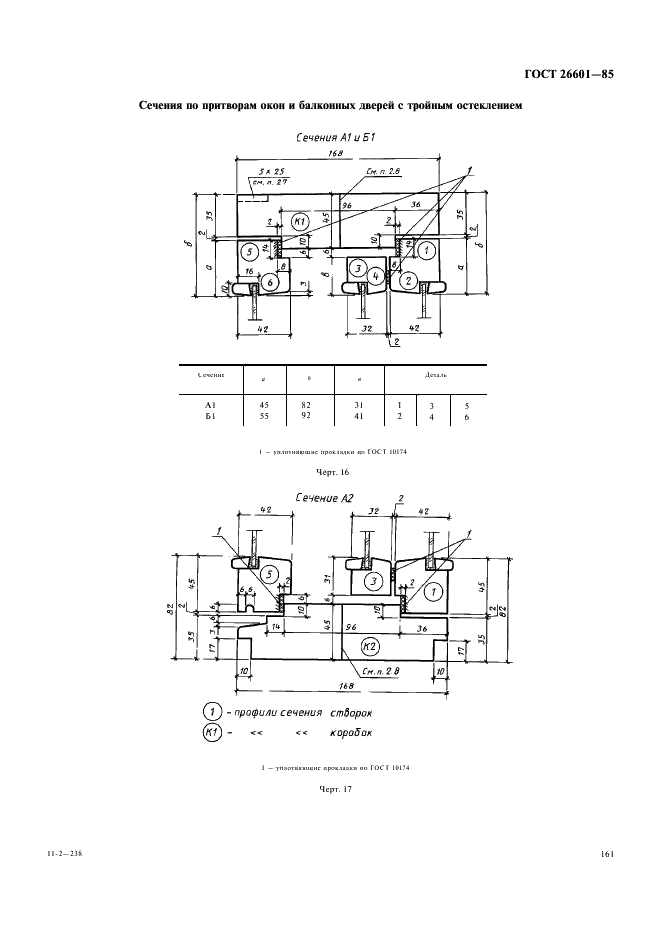
Окна и балконные двери деревянные для малоэтажных жилых домов. Типы, конструкция и размеры
| Обозначение: | ГОСТ 26601-85 | ||
| Статус: | действующий | ||
| Название рус.: | Окна и балконные двери деревянные для малоэтажных жилых домов. Типы, конструкция и размеры | ||
| Название англ.: | Wooden windows and balcony doors for one-two story dwelling buildings. Types, structur and dimensins | ||
| Дата актуализации текста: | 19.06.2012 | ||
| Дата актуализации описания: | 19.06.2012 | ||
| Дата введения в действие: | 01.01.1986 | ||
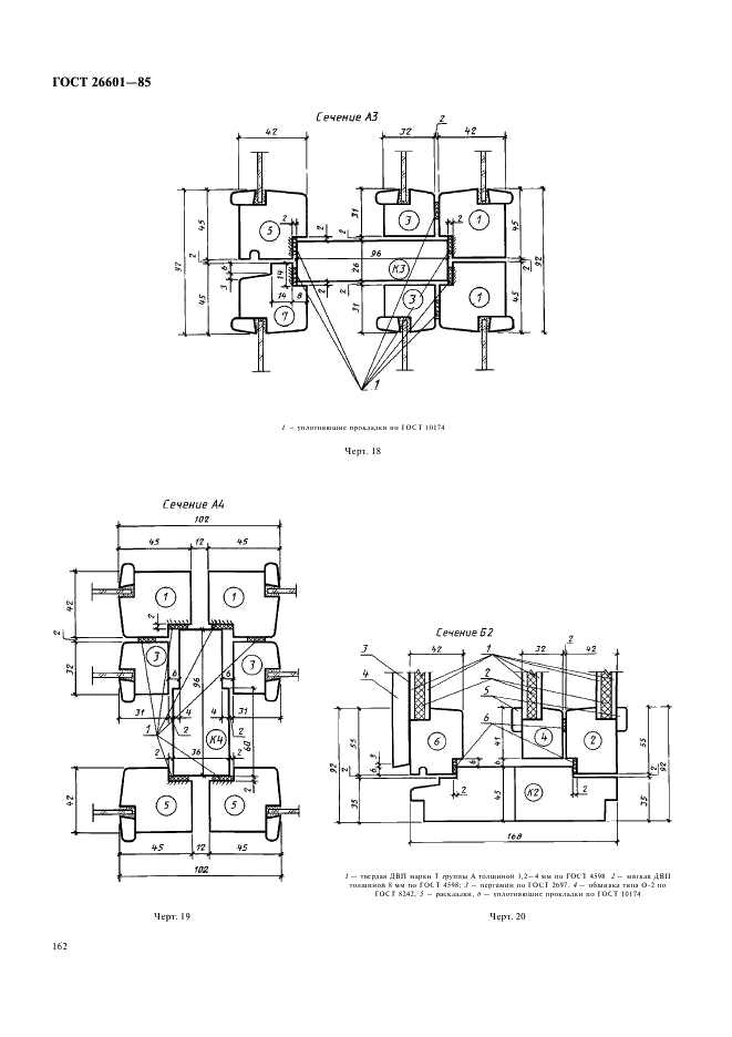
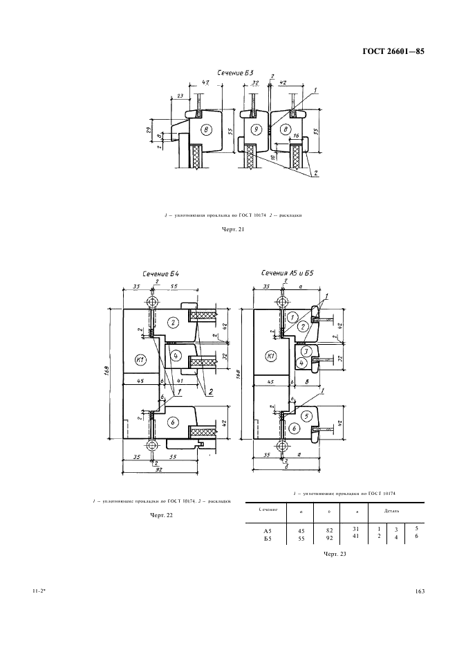
| Область и условия применения: | Настоящий стандарт распространяется на деревянные окна и балконные двери с двойным и тройным остеклением, предназначенные для жилых домов высотой не более двух этажей | ||















Автор:
Домашняя страница автора:
Чертежи бесплатно