Наша группа Вконтакте vk.com/4ertimcom
ГОСТ 14771-76
E-mail автора:
Дуговая сварка в защитном газе. Соединения сварные. Основные типы, конструктивные элементы и размеры
| Обозначение: | ГОСТ 14771-76 |
| Статус: | действующий |
| Название рус.: | Дуговая сварка в защитном газе. Соединения сварные. Основные типы, конструктивные элементы и размеры |
| Название англ.: | Gas-shielded arc welding. Welded joints. Main types, design elements and dimensions |
| Дата актуализации текста: | 19.06.2012 |
| Дата актуализации описания: | 19.06.2012 |
| Дата введения в действие: | 01.07.1977 |
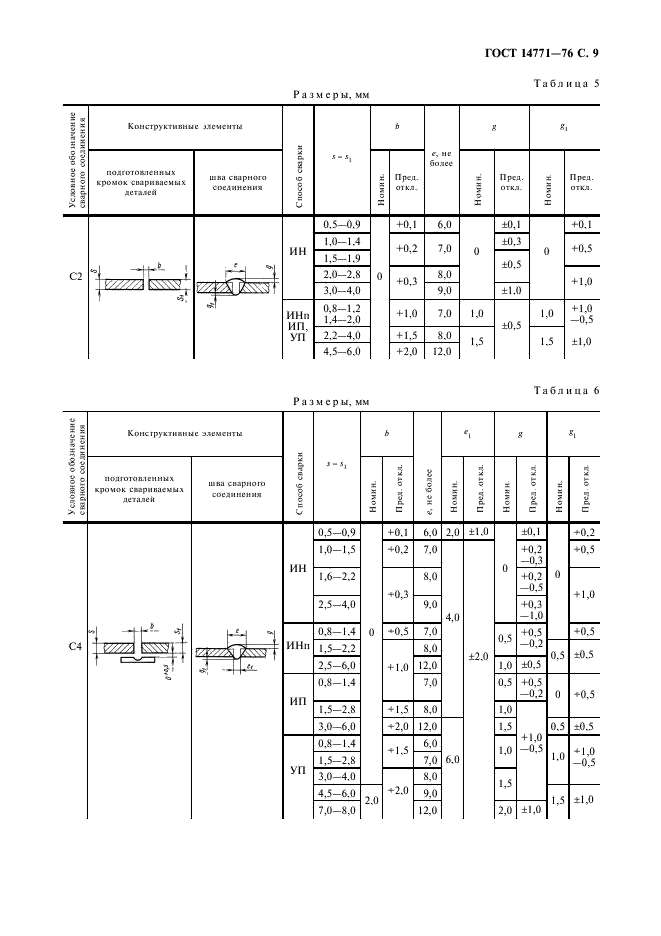
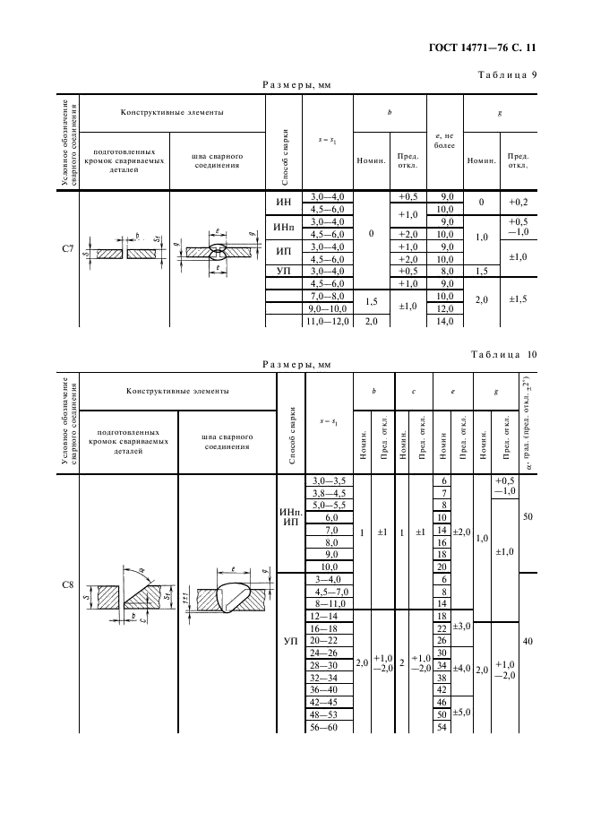
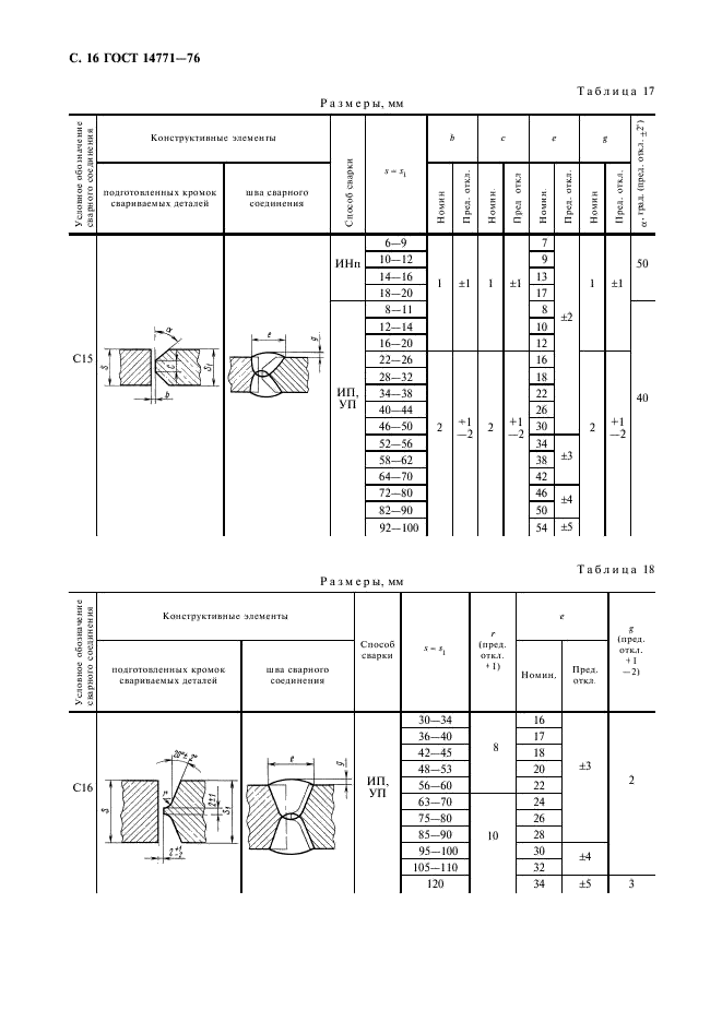
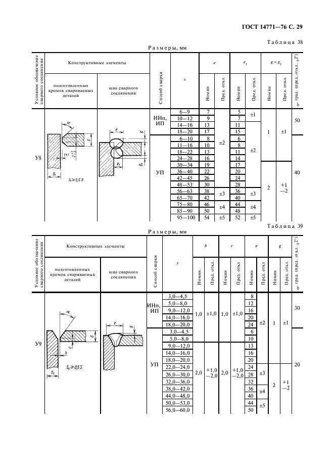
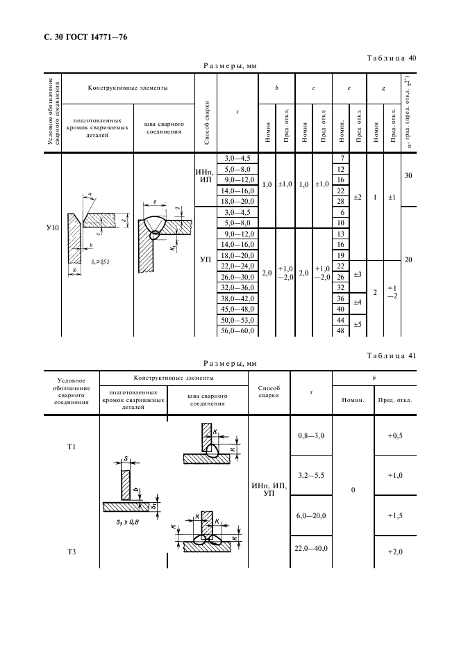
| Область и условия применения: | Настоящий стандарт устанавливает основные типы, конструктивные элементы и размеры сварных соединений из сталей, а также сплавов на железоникелевой и никелевой основах, выполняемых дуговой сваркой в защитном газе. Стандарт не устанавливает основные типы, конструктивные элементы и размеры сварных соединений стальных трубопроводов по ГОСТ 16037-80 |
| Взамен: | ГОСТ 14771-69 |
| Список изменений: | №1 от 01.08.1982 (рег. 03.03.1982) «Срок действия продлен» №2 от 01.07.1987 (рег. 16.12.1986) «Срок действия продлен» №3 от 01.03.1989 (рег. 03.01.1989) «Срок действия продлен» |







































Автор:
Домашняя страница автора:
Чертежи бесплатно