Наша группа Вконтакте vk.com/4ertimcom

Полный комплект чертежей на крытую ледовую арену

проекты Скачать чертеж
Домашняя страница автора: 
http://topengineer.ru/
Описание: 
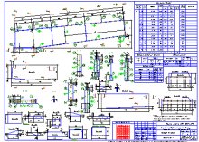
Полный комплект чертежей на крытую ледовую арену. Комплекты КМ (конструкции металлические) Комплект КМД- чертежи деталей на чертеже сборочном. Комплект КМД - чертежи деталей отдельным комплектом для поточного производства. Проект разработан в Tekla Structures. Все чертежи есть в DWG так, же могу дать модель в исходнике. Есть полная 3D модель. Более подробно о проекте можно узнать тут http://topengineer.ru/sample/3dmodel/proectirovanie-obshestvennih-zdaniy Проектов много если кому интересно то могу поделиться. Чертежи полный комплект !!!!

Комментарии

Неплохой комплект,а есть чертежи ангара?стойки и фермы,оч нужно (((